Beschreibung
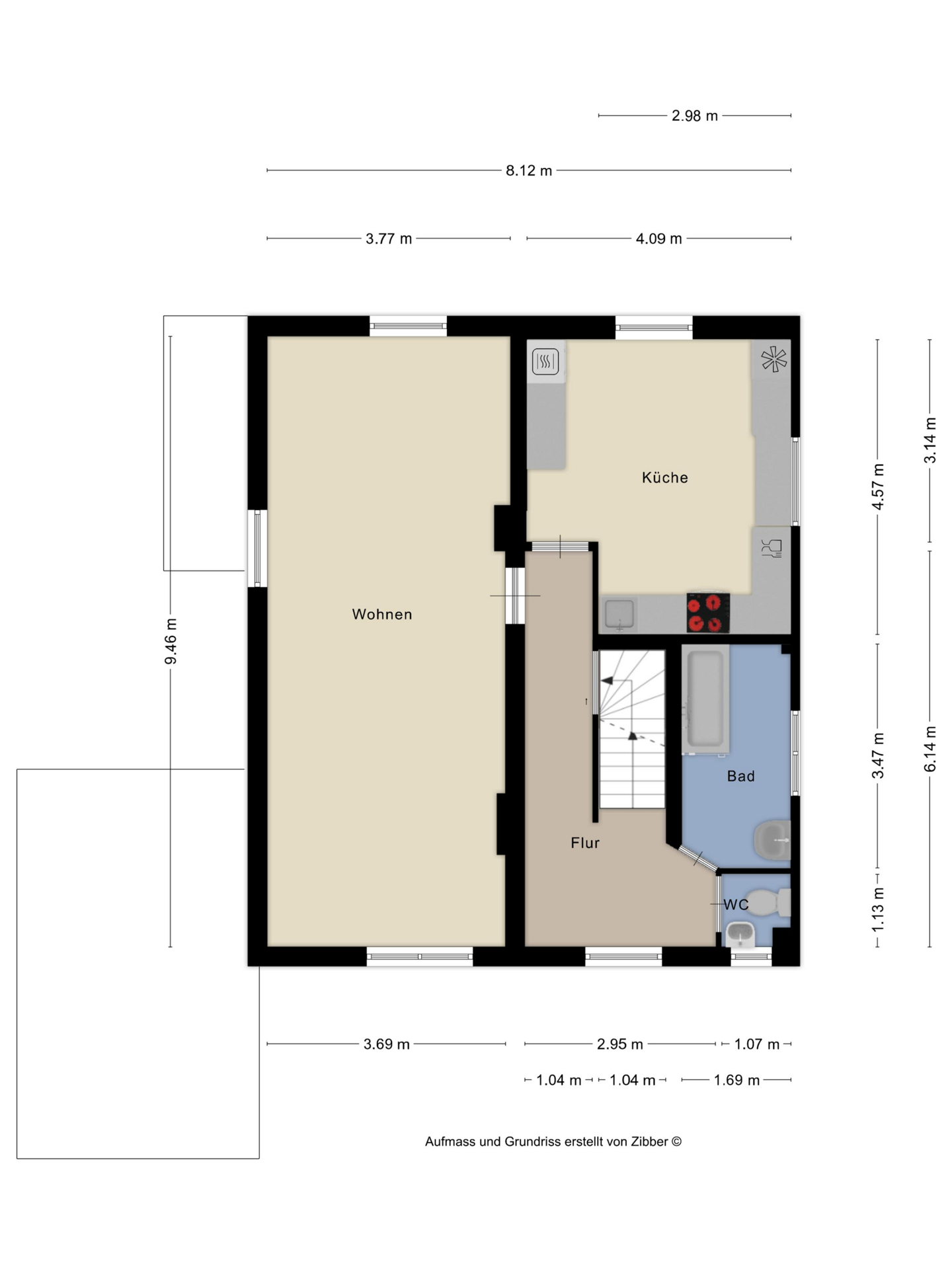
Das ursprünglich im Jahr 1950 errichtete Wohn- und Geschäftshaus liegt auf einem ca. 498 m² großen Eckgrundstück. Nach einem Umbau wurden zwei getrennte Wohneinheiten geschaffen: Eine 3-Zimmer-Wohnung im Erdgeschoss mit ca. 67 m² sowie eine 4-Zimmer-Maisonettewohnung im Ober- und Dachgeschoss mit ca. 117 m².
Die Erdgeschosswohnung wird Ende April 2026 frei, sodass sie entweder selbst genutzt oder neu vermietet werden kann. Die Maisonettewohnung ist seit mehreren Jahren an eine Familie vermietet. Die aktuelle Kaltmiete beträgt 850,00 € pro Monat.
In den 1990er Jahren wurden umfangreiche Modernisierungs- und Sanierungsmaßnahmen durchgeführt: Die Fenster wurden erneuert, die Elektrik modernisiert und die Wasser- und Abwasserleitungen ertüchtigt. Beide Wohneinheiten verfügen zudem über eigene Gasthermen (Baujahr 2014 und 2022), die eine unabhängige Wärmeversorgung sicherstellen.
Beide Wohnungen verfügen über einen eigenen Gartenbereich sowie PKW-Stellplätze direkt auf dem Grundstück. Der Keller bietet ausreichend Nutzfläche und jeweils eigene Abstellbereiche für beide Parteien. Eine gemeinschaftliche Waschküche ergänzt den praktischen Nutzbereich. Die ursprünglich vorhandene Garage wurde aufgeteilt und dient heute beiden Parteien als weitere Abstellfläche.
Das Haus bietet vielseitige Nutzungsmöglichkeiten: Es eignet sich sowohl für Kapitalanleger als auch für Eigennutzer, etwa als Mehrgenerationenhaus, zur teilweisen Selbstnutzung oder als reine Kapitalanlage. Zudem kann das Haus durch einen einfachen Umbau wieder als Einfamilienhaus genutzt werden.
Ausstattung
– Zweifamilienhaus in Massivbauweise auf einem Eckgrundstück
– zentrumsnahe Lage
– zwei Wohnungsgrößen mit eigenem Gartenanteil
– überwiegend Kunststofffenster aus 1997
– teilweise Rollläden
– Gas-Etagen-Heizungen aus 2022 und 2014 (Buderus & Wolf)
– Warmwasseraufbereitung über die Thermen
– ausreichend Nutzfläche dank Keller, Dachboden & Garage
– 3 Tageslichtbäder (2 x Dusche, 1 x Wanne)
– Gäste-WC in der Maisonettewohnung
– Bodenbeläge: Parkett, Fliesen & Laminat
– PKW Stellplätze für beide Wohnungen
Lage
Das Haus befindet sich in Hebborn, nur wenige Minuten vom Zentrum von Bergisch Gladbach entfernt. Alle wichtigen Einrichtungen des täglichen Lebens, wie Supermärkte, Apotheken, Ärzte, Restaurants und Cafés, sind bequem zu Fuß erreichbar. Auch der S-Bahn-Anschluss nach Köln sowie der Busbahnhof mit zahlreichen Linien in alle Richtungen liegen in unmittelbarer Nähe, sodass Pendler und Stadtliebhaber gleichermaßen profitieren.
Die Lage bietet zugleich einen hohen Freizeitwert. Das Bergische Land mit seinen idyllischen Wanderwegen, dem Papiermuseum „Alte Dombach“ und der historischen Asselborner Mühle ist schnell erreichbar. Naherholungsgebiete wie die Schlade oder der Reiterhof Hebborner Hof liegen nur wenige Gehminuten entfernt und laden zu Spaziergängen, Radtouren oder Reitausflügen ein.
Für Autofahrer sind die Autobahnen gut erreichbar: In etwa 10 Minuten erreichen Sie die A4 Anschlussstelle Bensberg, in rund 15 Minuten die A1 in Burscheid.
Diese Immobilie überzeugt durch seine zentrale und zugleich ruhige Lage: Sie wohnen nah am Geschehen, profitieren von hervorragender Infrastruktur und genießen gleichzeitig die Nähe zur Natur und vielfältige Freizeitmöglichkeiten – ein idealer Standort für Familien, Berufstätige und Naturliebhaber.
Sonstiges
Wir bitten Sie um Ihr Verständnis, dass wir ausschließlich Anfragen mit Angabe des Namens, Telefon-Nummer, Anschrift (Straße und Hausnummer, PLZ und Ort) sowie der E-Mail-Adresse beantworten können.
Die gezeigten Pläne und Zeichnungen sind als Skizze zu verstehen. Die angegebenen Maße sind Circa-Maße und können zum Teil von den tatsächlichen Gegebenheiten abweichen. Alle Daten und in dem Exposé getroffenen Darstellungen beziehen sich auf die Aussagen des Eigentümers. Für die Richtigkeit dieser Angaben oder Änderungen können wir keine Haftung übernehmen.
Die Starck Immobilien GmbH erklärt ausdrücklich für beide Kaufvertragsparteien provisionspflichtig tätig zu sein.